門真市四宮2丁目 中古戸建 大阪府門真市四宮2丁目|598万円の中古一戸建て|マックス不動産販売 門真店
| 価格 | 598万円 ![]() |
||||
|---|---|---|---|---|---|
| 所在地 | 大阪府門真市四宮2丁目
この地域周辺の物件を見る |
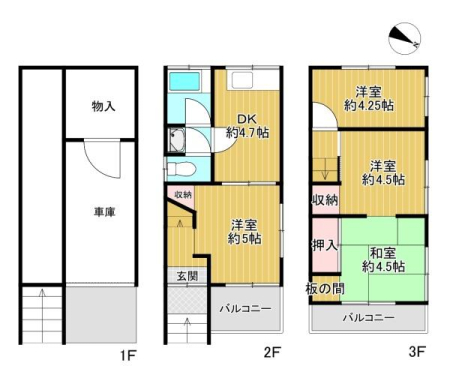
土地面積 | 42.28m² (12.78坪) | 建物面積 | 72.63m2 |
| 築年月 | 1982年10月築 | 間取り | 4DK (-) | ||
| 交通 |
京阪本線 萱島 徒歩18分
京阪本線 大和田 徒歩21分 京阪本線 古川橋 徒歩34分 |
||||
| 特徴 |
|
|---|---|
| セールスコメント | ※司法書士は当社指定 |
| 採光面 | - | 構造/階数 | その他/地上3階建 |
|---|---|---|---|
| 建ぺい率 | 60(%) | 容積率 | 200(%) |
| 駐車場 | 有 | 現況/引渡し | 空家/相談 |
| 土地権利 | 所有権 | 私道負担面積 | - |
| 接道状況 | 接道: 北東 道路幅: 4.2m | 用途地域 |
準工業地域
|
| セットバック | - | 法令上の制限 | - |
| 地目 | 宅地 | 地勢 | |
| 建築確認番号 | 都市計画 | 市街化区域 | |
| 取引態様 | 一般媒介 | ||
| 情報更新日 | 2026年05月19日 | 次回更新日 | 2026年06月02日 |
| 小学校区 | 門真市立四宮小学校 (大阪府門真市) この学区の他の物件を見る |
中学校区 | 第五中学校 (大阪府門真市) この学区の他の物件を見る |
|---|
| 価格 | 万円 | ||
|---|---|---|---|
| 年利率 | % |
||
| ボーナス払い | 返済年数 | ||
| 頭金 | 直接入力する | 万円 | |

毎月のご返済額 |
ボーナス(×年2回) |
物件価格598万円 |
シャッター付きガレージあり!
収益物件としてもオススメ!
徒歩5分圏内にコンビニあり!