豊中柴原シティハウス 大阪府豊中市柴原町2丁目 6-3|3,790万円の中古マンション|分譲住宅や新築物件|マックス不動産販売 豊中店
| 価格 | 3,790万円 ![]() |
||||
|---|---|---|---|---|---|
| 所在地 | 大阪府豊中市柴原町2丁目 6-3
この地域周辺の物件を見る |
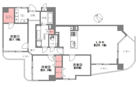
専有面積 | 96.13m2 | 築年月 | 1992年3月築 |
| 交通 |
大阪モノレール 柴原阪大前 徒歩8分
阪急宝塚本線 豊中 徒歩18分 大阪モノレール 少路 徒歩21分 |
管理費等 | 17,150円 | 修繕積立金 | 18,280円 | 所在階/階数 | 3階/地上6階建 | バルコニー面積 | - |
| 間取り | 3LDK (-) | ||||
| 特徴 |
|
|---|---|
| セールスコメント | - |
| 採光面 | 東南 | 取引態様 | 仲介 |
|---|---|---|---|
| 現況 | 空室 | 引渡し | 相談 |
| 総戸数 | 18戸 | 構造 | RC造 |
| テラス面積 | - | 専用庭面積 | - |
| 駐車場 | 有:15,000円/月 | 駐輪場 | - |
| 建物権利 | - | 土地権利 | 所有権 |
| 用途地域 | - - - | 管理態様 | 管理形態:日勤 管理組合:あり 管理会社:合人社計画研究所 |
| 情報更新日 | 2025年11月28日 | 次回更新日 | 2025年12月12日 |
| 小学校区 | 豊中市立桜井谷小学校 (大阪府豊中市) この学区の他の物件を見る |
中学校区 | 第十三中学校 (大阪府豊中市) この学区の他の物件を見る |
|---|
| 価格 | 万円 | ||
|---|---|---|---|
| 年利率 | % |
||
| ボーナス払い | 返済年数 | ||
| 頭金 | 直接入力する | 万円 | |

毎月のご返済額 |
ボーナス(×年2回) |
物件価格3,790万円 |
〜二面バルコニー付きの3LDKマンション〜
・広々リビング約20帖!
・2面バルコニーにつき陽当たり良好